Appartement de 111m2 - 1 pièce - Reims - Quartier Centre Ville
162 000 €
1 459€ / m2
Description
RARE ! à deux pas du centre ville et proche de tout commerce, écoles, services et transports
Profitez de ce plateau brut à aménager pour concrétiser votre projet immobilier d'investissement locatif ou résidence principale.
Pas de mode de chauffage actuellement
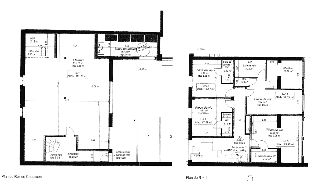
A SAISIR ! LOT 1 Ref. : 14215
**Honoraires à la charge du vendeurNos honoraires
Télécharger gratuitement le Guide des quartiers de REIMS
Réf. 14215
Appartement vendu le 02/03/2020
- Type de bien
- Appartement
Resté sur le marché pendant 88 jours
Surfaces
- Surface habitable
- 111,0m2
Tarifs
- Prix de vente
- 162 000€
- Prix au mètre carré
- 1 459€ / m2
Pièces
- Pièces
- 1
Description complémentaire
Loft
| Surface terrain | NC |
|---|---|
| Année de construction | NC |
| Nombre de niveaux | NC |
Consommation d'énergie
Diagnostic non effectué ou en cours de réalisation
Emission de gaz à effet de serre
Diagnostic non effectué ou en cours de réalisation
Vente appartement de 111m2 (1 pièce) à Reims dans le quartier Centre Ville