Appartement de 115m2 - 4 pièces - Reims - Quartier Centre Ville
429 000 €
3 730€ / m2
Description
iad France - Alison DODIN vous propose : Très bel appartement de 114 m2 environ, au 2 ème étage, lumineux au coeur du centre ville, avec le charme de l'ancien (moulures, parquets, cheminées en marbre).
L'appartement se situe en fond de cours, dans un lieu de vie calme.
Immeuble de style Haussmannien, avec appartement indépendant sur chaque palier.
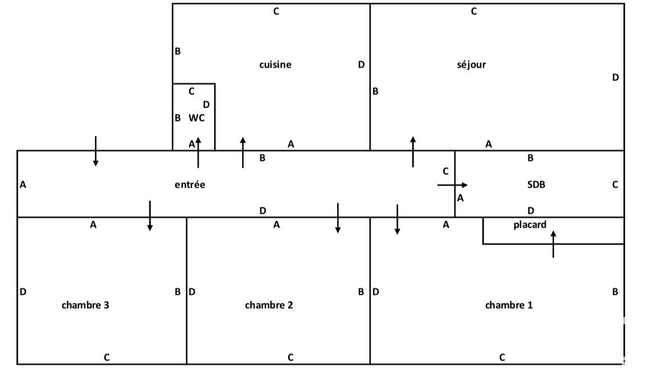
Il se compose d'une entrée spacieuse, desservant un WC, une cuisine équipée, un salon avec une très belle vue dégagée donnant sur un jardin arboré, d'une salle de douche et de trois grandes chambres.
Cet appartement a été refait à neuf (chaudière et électricité) et décoré avec goût en gardant le charme de l'ancien.
Coup de coeur assuré !!!!
VISITE VIRTUELLE POSSIBLE
La présente annonce immobilière vise 1 lot principal situé dans une copropriété formant 6 lots au total ne faisant l'objet d'aucune procédure en cours et d'un montant de charges d’environ 63.33 € par mois (soit 760 € annuel) déclaré par le vendeur. Honoraires d’agence à la charge du vendeur. Information d'affichage énergétique sur ce bien : DPE C indice 150 et GES D indice 35. La présente annonce immobilière a été rédigée sous la responsabilité éditoriale de Mme Alison DODIN (ID 34774), mandataire indépendant en immobilier (sans détention de fonds), agent commercial de la SAS I@D France immatriculé au RSAC de Reims sous le numéro 524577418, titulaire de la carte de démarchage immobilier pour le compte de la société I@D France SAS.
Retrouvez tous nos biens sur notre site internet. www. iadfrance. com
Appartement vendu le 27/02/2021
Jardin Interphone Cave Cheminée
- Type de bien
- Appartement
Resté sur le marché pendant 54 jours
Surfaces
- Surface habitable
- 115,0m2
Tarifs
- Prix de vente
- 429 000€
- Prix au mètre carré
- 3 730€ / m2
Pièces
- Pièces
- 4
- Chambres
- 3
Chauffage et eau chaude
- Cheminée
| Surface terrain | NC |
|---|---|
| Année de construction | NC |
| Nombre de niveaux | NC |
Consommation d'énergie
Logement économe
- < 50A
- 51 à 90B
- 91 à 150C150
- 151 à 230D
- 231 à 330E
- 331 à 450F
- > 450G
Logement énergivore
Emission de gaz à effet de serre
Faible émission de GES
- < 5A
- 6 à 10B
- 11 à 20C
- 21 à 35D35
- 36 à 55E
- 56 à 80F
- > 80G
Forte émission de GES
Vente appartement de 115m2 (4 pièces) à Reims dans le quartier Centre Ville