Appartement de 76m2 - Reims - Quartier Jean-Jaurès Appartement de 76m2 - Reims - Quartier Jean-Jaurès Appartement de 76m2 - Reims - Quartier Jean-Jaurès

291 900

3 841€ / m2

Description

A VENDRE SECTEUR CARTERET APPARTEMENT TYPE 3 NEUF - REIMS 51
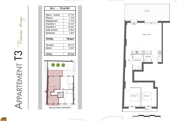
Situé dans une résidence intimiste dans un quartier en plein essor, appartement de type 3 offrant de beaux volumes composé d'un séjour double avec cuisine ouverte, 2 chambres, salle de bain et wc.
Vous profiterez également d'un balcon ainsi que d'une belle terrasse.
A visiter sans tarder.
RT2012 - LOI PINEL
D'autres lots de disponibles, brochure à l'agence.
Réf : 4111
Honoraires charge vendeur Salle de bain.

Appartement vendu le 29/03/2021

Terrasse Balcon

76m²
Type de bien
Appartement

Surfaces

Surface habitable
76,0m2

Tarifs

Prix de vente
291 900€
Prix au mètre carré
3 841€ / m2
Surface terrain NC
Année de construction NC
Nombre de niveaux NC

Consommation d'énergie

Diagnostic non effectué ou en cours de réalisation

Emission de gaz à effet de serre

Diagnostic non effectué ou en cours de réalisation

Vente appartement de 76m2 à Reims dans le quartier Jean-Jaurès