Appartement de 101m2 - 1 pièce - Reims - Quartier Centre Ville Appartement de 101m2 - 1 pièce - Reims - Quartier Centre Ville

175 000

1 720€ / m2

Description

RARE ! à deux pas du centre ville et proche de tout commerce, écoles, services et transports
Profitez de ce plateau brut à aménager pour concrétiser votre projet immobilier d'investissement locatif ou résidence principale.
Pas de mode de chauffage actuellement
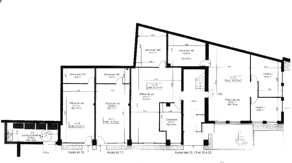
A SAISIR ! lot 13 Réf. : 14228

Appartement vendu le 30/03/2020

101m² 1 pièces
Type de bien
Appartement

Resté sur le marché pendant 21 jours

Surfaces

Surface habitable
101,7m2

Tarifs

Prix de vente
175 000€
Prix au mètre carré
1 720€ / m2

Pièces

Pièces
1
Surface terrain NC
Année de construction NC
Nombre de niveaux 2

Consommation d'énergie

Diagnostic non effectué ou en cours de réalisation

Emission de gaz à effet de serre

Diagnostic non effectué ou en cours de réalisation

Vente appartement de 101m2 (1 pièce) à Reims dans le quartier Centre Ville